Strandnah & ruhig an der Feldkante – beliebte 2-Zimmer-Wohnung in Top Lage

Wohnfläche ca. 43 m² - Kaufpreis 99.000 €

Beschreibung

Objektbeschreibung

Das gemütliche Appartement befindet sich im kleinen Weiler D und ist nur ca. 300 m bzw. fünf Gehminuten vom Ostseestrand entfernt. Die Anlage erinnert an einen charmanten Dorfplatz – umgeben von alten Bäumen, Blumen und gepflegten Grünflächen, die ein stilvolles Ambiente schaffen.

Sieben Landhäuser im klassischen Stil, teils mit Fachwerk, gruppieren sich harmonisch um den Platz. Jedes Haus umfasst vier bis sechs Wohneinheiten.

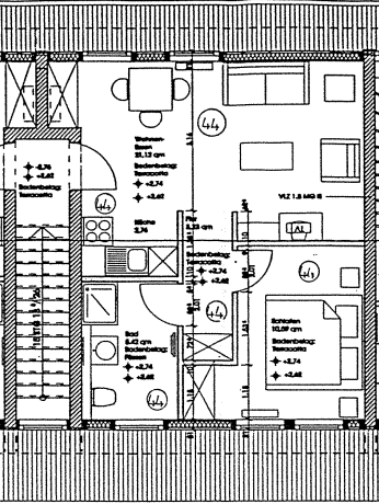
Ihre neue Ferienwohnung ist nach Süden ausgerichtet und bietet Platz für bis zu vier Personen. Der gut geschnittene Wohnbereich im Obergeschoss verfügt über eine gemütliche Essecke, ein komfortables Schlafsofa und eine offene Küchenzeile. Von hier genießen Sie einen schönen Blick ins Grüne.

Ein separates, geräumiges Schlafzimmer sowie ein helles Tageslichtbad runden das Gesamtbild ab und bieten alles, was man sich für entspannte Urlaubstage wünscht. 

Lagebeschreibung

Das Feriendorf Rugana befindet sich im Norden der Insel Rügen, auf der Halbinsel Wittow und liegt direkt an der Ostsee. Lediglich ein ca. 300 m breiter Küstenwald trennt und schützt das Feriendorf, welches in seiner Art das weitläufigste Ferienhausresort der Halbinsel Wittow darstellt. Sie werden es ganz sicher lieben! Hier finden Sie Idylle und Ruhe pur – der wildromantische Strand, der sich kilometerweit bis hin zum Kap Arkona erstreckt, das angrenzende Naturschutzgebiet der Kreptitzer Heide mit frei laufenden Schafen, das bestens ausgestattete Feriendorf mit seinen vier Weilern, die mit ihren geschmackvoll gestalteten Landhäusern und Dorfplätzen perfekt in die Umgebung passen. Hier finden Sie Landleben und Ruhe in ursprünglicher Atmosphäre! Das Feriendorf bietet mehr als nur 400.000 m² Fläche. Insbesondere Familien wissen das umfangreiche Freizeitangebot zu schätzen, welches zukünftig noch weiter ausgebaut wird. Ein beheiztes Schwimmbad (indoor) steht Ihnen ganzjährig zur Verfügung, der Saunabereich wurde erst vor kurzem hochwertig renoviert und um eine großzügige Wellness Oase 

erweitert. Ihre Kinder werden das Schwimmbad als auch die zahlreichen Spielplätze auf dem Gelände lieben. Ein großzügiger Kinderclub im Resort als auch ein Fitnessstudio stehen all unseren kleinen und großen Gästen ebenfalls zur Verfügung. Dies sind nur einige Vorteile, die das Feriendorf ausmachen. Es gibt Fuß- und Volleyballplätze, Tischtennisplatten, eine Minigolf- Anlage und selbstverständlich einen Fahrradverleih. Sollten Sie im Urlaub keine Lust auf Kochen haben, so können Sie in unserem Restaurant vorzüglich speisen. Fangfrischen Fisch finden Sie hier ebenso auf der Karte, wie klassische Gerichte. In jedem Fall ein kulinarischer Genuss zu fairen Preisen. Wer es vorzieht, selbst zu kochen, kann sich beim Supermarkt in der Nähe als auch in unserem eigenen Backshop, mit Kleinigkeiten für den täglichen Bedarf, selbst versorgen.

 

Ausstattung

Die Ausstattung der Wohnung erfüllt die Standards einer Ferienwohnung in jeder Hinsicht. Vom TV mit Flat-Screen bis zum Toaster wurde hier an alles gedacht. Sie erwerben die Wohnung mit Inventar sowie einem Stellplatz. Erfüllen Sie sich Ihren Traum: eine eigene Wohnung an der Ostsee!

Alle Angaben ohne Gewähr. Die Inhalte dieses Exposés stammen vom Anbieter. Für Daten Dritter übernehmen wir keine Haftung. Das Angebot ist nur für Sie bestimmt und darf nicht an Dritte weitergegeben werden. Eine Weitergabe verpflichtet zur Zahlung von Schadenersatz, falls ein Dritter dadurch zum Vertragsabschluss kommt und dieses Angebot provisionspflichtig ist. Die Grunderwerbsteuer, Notar- und Grundbuchkosten sind vom Käufer zu tragen. Bitte nehmen Sie Kontakt mit uns auf, wenn Sie weitere Fragen zur Immobilie haben oder einen unverbindlichen Besichtigungstermin vereinbaren möchten.

Widerrufsbelehrung und Widerrufsrecht

Sie haben das Recht, binnen vierzehn Tagen ohne Angabe von Gründen diesen Vertrag zu widerrufen. Die Widerrufsfrist beträgt vierzehn Tage ab dem Tag des Vertragsabschlusses. Um Ihr Widerrufsrecht auszuüben, müssen Sie uns: Insel Urlaub Rügen Appartement Vermietung GmbH Dollahner Str. 55 18609 Ostseebad Binz Telefon: 030 27 59 59 952 Fax: 030 27 59 59 999 eigentum@rugana.de mittels einer eindeutigen Erklärung (z. B. ein mit der Post versandter Brief, Telefax oder E-Mail) über Ihren Entschluss, diesen Vertrag zu widerrufen, informieren. Sie können dafür das beigefügte Muster-Widerrufsformular verwenden, das jedoch nicht vorgeschrieben ist. Zur Wahrung der Widerrufsfrist reicht es aus, dass Sie die Mitteilung über die Ausübung des Widerrufsrechts vor Ablauf der Widerrufsfrist absenden. Folgen des Widerrufs: Wenn Sie diesen Vertrag widerrufen, haben wir Ihnen alle Zahlungen, die wir von Ihnen erhalten haben, einschließlich der Lieferkosten (mit Ausnahme der zusätzlichen Kosten, die sich daraus ergeben, dass Sie eine andere Art der Lieferung als die von uns angebotene, günstigste Standardlieferung gewählt haben), unverzüglich und spätestens binnen vierzehn Tagen ab dem Tag zurückzuzahlen, an dem die Mitteilung über Ihren Widerruf dieses Vertrags bei uns eingegangen ist. Für diese Rückzahlung verwenden wir dasselbe Zahlungsmittel, das Sie bei der ursprünglichen Transaktion eingesetzt haben, es sei denn, mit Ihnen wurde ausdrücklich etwas anderes vereinbart; in keinem Fall werden Ihnen wegen dieser Rückzahlung Entgelte berechnet. Haben Sie verlangt, dass die Dienstleistungen während der Widerrufsfrist beginnen soll, so haben Sie uns einen angemessenen Betrag zu zahlen, der dem Anteil der bis zu dem Zeitpunkt, zu dem Sie uns von der Ausübung des Widerrufsrechts hinsichtlich dieses Vertrags unterrichten, bereits erbrachten Dienstleistungen im Vergleich zum Gesamtumfang der im Vertrag vorgesehenen Dienstleistungen entspricht. Hinweis auf die Möglichkeit eines vorzeitigen Erlöschens des Widerrufsrechts: Ihr Widerrufsrecht erlischt, wenn wir unsere Leistung vollständig erbracht haben und mit der Ausführung der Leistung erst begonnen haben, nachdem Sie Ihre ausdrückliche Zustimmung gegeben haben und gleichzeitig Ihre Kenntnis davon bestätigt haben, dass Sie Ihr Widerrufsrecht bei vollständiger Vertragserfüllung durch uns verlieren.

Daten der Wohnung

Wichtiges im Überblick

  • Objekt-Nr.: 44
  • Baujahr: 1995
  • Objektstatus: Gepflegt
  • Verfügbarkeit: ab sofort
  • Zimmer: 2,0
  • Gastraumfläche: ca. 43 m²
  • Kaufpreis: 99.000 €
  • Energieausweis: Energiebedarfsausweis
  • Endenergiebedarf: 74,8 kWh/(m²*a)
  • Ausgestellt: ausgestellt am 16.10.2023
  • Heizungsart: Zentralheizung
  • Befeuerungsart: Fernwärme
  • Küche: Einbauküche
  • Etage: 1
  • Stellplatz: 1
  • Ausblick: Wiese
  • Hallenbad: Ja
  • Möbliert/Teilmöbliert: Ja
  • Sauna: Ja
  • Waschraum: Ja
  • Courtage: 3,57 % inkl. Mwst. zahlbar vom Käufer und fällig mit Beurkundung des Kaufvertrages

Bilder

Lageplan

Interaktiver Lageplan

Exposé / Grundriss

Grundriss

Exposé

PDF-Datei des Exposé

Das Exposé dieser Wohnung im PDF-Format zum ausdrucken oder herunterladen.